Home
Bilder
Hausbau Baubeschreibung
Kontakt
Impressum
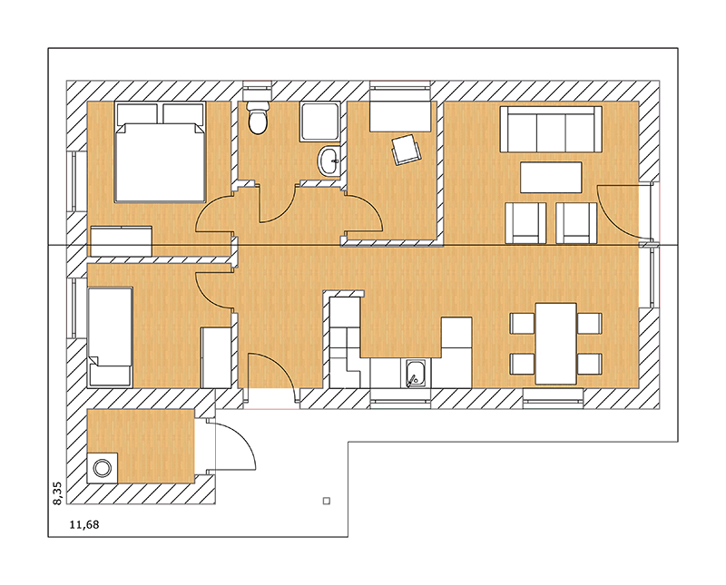
Aalborg 75
3 Schlafzimmer, Küche, Wohn- Essbereich, Bad, Flur, 75qm
Datenschutz
Aktuelles finden Sie auch auf Facebook