Home
Bilder
Hausbau Baubeschreibung
Kontakt
Impressum
Datenschutz
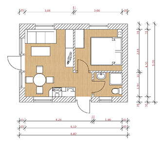
Priwall
Wohn-/Eßbereich mit Küche, Schlafzimmer, Bad, 35 m²
Aktuelles finden Sie auch auf Facebook